Julie Hanna
Graduate Architect
Menu
Skip to content
About
Portfolio
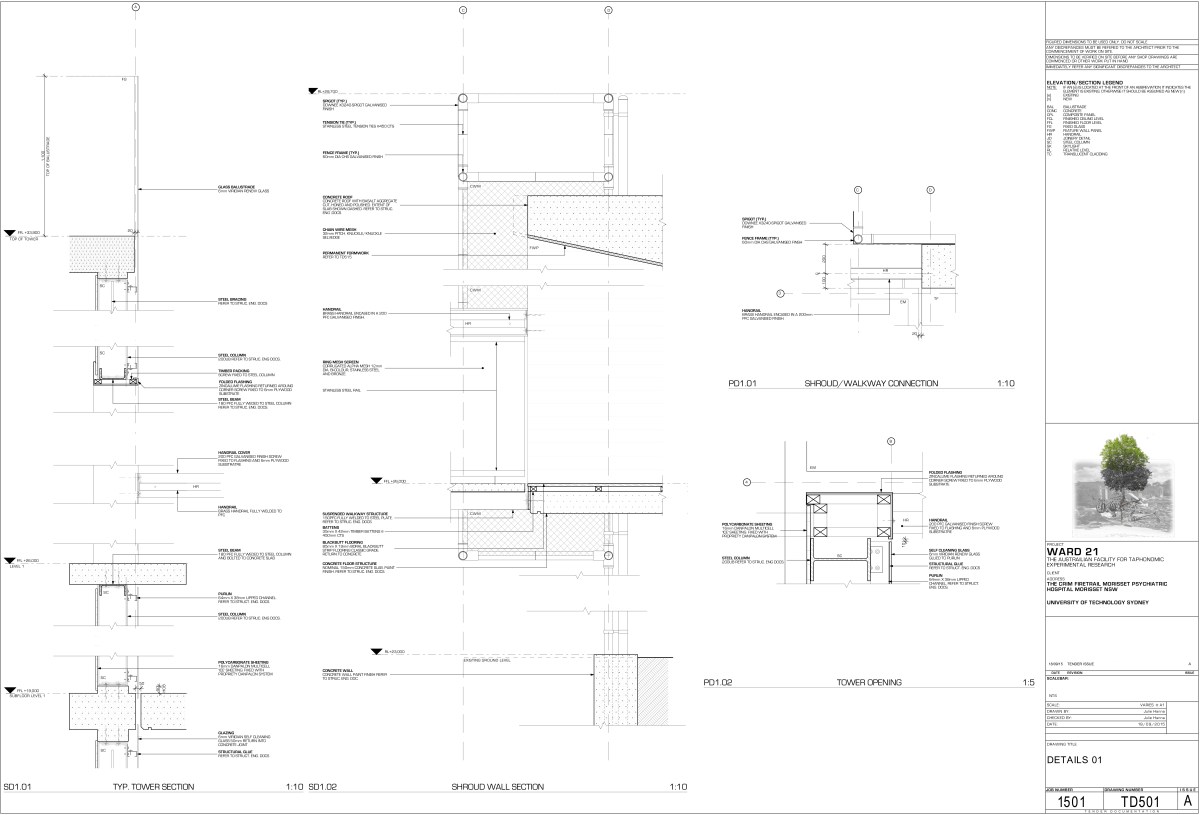
Ward 21
Project Initiation
Concept Design
Schematic Design
Developed Design
Working Drawings
Final Design
Crack in the Urban Fabric
Coming Soon…
Carrington Refugee Housing
Coming Soon…
NADA
Coming Soon…
CV
Contact
Working Drawings
Like
Loading...
Privacy & Cookies: This site uses cookies. By continuing to use this website, you agree to their use.
To find out more, including how to control cookies, see here:
Cookie Policy
Julie Hanna
Sign up
Log in
Copy shortlink
Report this content
Manage subscriptions
Loading Comments...
Write a Comment...
Email (Required)
Name (Required)
Website
%d